Сдам в аренду помещение свободного назначения 282 м.кв.

Просмотров 18
253 800 руб. / мес
Ярославль , Октября проспект, д.зд76
Аллакулыев Мурат
Показать телефон
Данные актуальны на 27.02.2026
Пожаловаться на объявление
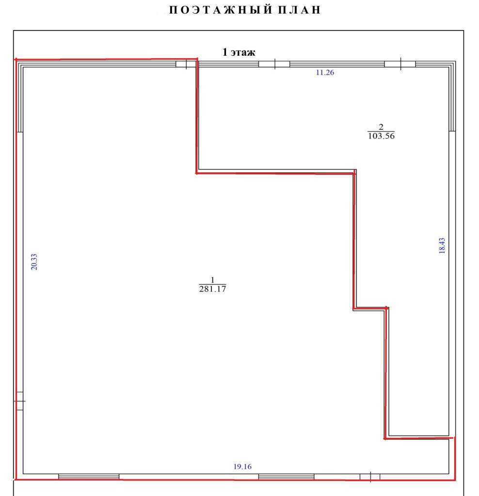
Арт. 91914869. Аренда теплого помещения 282 м на 1-й линии пр-та Октября, д. 76 - без комиссии для арендатора! Группа компаний "Метро" предлагает аренду отдельно стоящего здания с полной коммуникационной инфраструктурой, идеально подходящего под автосалоны, торговлю и производственные нужды. Преимущества помещения - Площадь 282 м - Электроснабжение 48 кВт - Высота потолков 3,5 м, толщина пола 15см, перегородки можно сломать - Газовое отопление, вода, канализация, - все необходимые коммуникации подключены - Вход и ворота с пр-та Октября и запасной выход - Земля в собственности, можно сделать собственную парковку со шлагбаумом с пр-та Октября Преимущества для бизнеса - Удобное расположение с быстрым доступом к крупным транспортным развязкам - Территория под видеонаблюдением - безопасность и контроль - Без комиссии для арендатора - экономия при заключении договора - Условия аренды: аренда 900 руб. /м2 + электричество и вода по счетчику, газ - Возможны арендные каникулы - Договор напрямую с ИП по УСН (6%) Звоните прямо сейчас для записи на просмотр и обсуждения выгодных условий! Колл-центр работает круглосуточно для вашего удобства. Это надежное решение для развития вашего бизнеса с выгодными условиями в привлекательном месте!

Дополнительная информация

Тип здания Отдельное здание Этаж 1 Этажность 1 Количество комнат - Вход Отдельный Ремонт С ремонтом
Интернет - Кондиционер - Вентиляция - Пожарная сигнализация - Красная линия -
Объекты, находящиеся поблизости
Банки, банкоматы
ВТБ 171м
Столовые, кафе
Запеканка 52м
Автосервис
Автомойка 420м
Автомойка 565м
Динамика изменения цен на рынке недвижимости ?

По городу Ярославль, в категории Универсальные помещения
За последние полгода средняя сумма аренды за кв.м. выросла на 2 руб. Колебание цен происходило от 737 руб. до 742 руб. На текущий момент наблюдается тенденция к уменьшению цены.
Похожие объявления
Обновлено
19.05.2026
Фотографии
15
Объявление 731932
Ярославль, Тутаевское шоссе, д.зд60к
182 000
руб. / мес Аренда
260 м2
Обновлено
07.05.2026
Фотографии
15
Объявление 738011
Ярославль, Малая Техническая улица, д.9
191 800
руб. / мес Аренда
274 м2
Обновлено
17.04.2026
Фотографии
15
Объявление 735016
Ярославль, Свободы улица, д.19
192 000
руб. / мес Аренда
320 м2
Обновлено
17.04.2026
Фотографии
15
Объявление 731407
Ярославль, Республиканская улица, д.7
216 800
руб. / мес Аренда
271 м2
Обновлено
14.04.2026
Фотографии
7
Объявление 736563
Ярославль, Промышленное шоссе, д.зд61
145 000
руб. / мес Аренда
290 м2
Обновлено
11.04.2026
Фотографии
15
Объявление 731257
Ярославль, Толбухина проспект, д.3А
69 900
руб. / мес Аренда
240 м2
Обновлено
11.04.2026
Фотографии
10
Объявление 655794
Ярославль, Ленинградский проспект, д.52а
89 000
руб. / мес Аренда
235 м2
Обновлено
11.04.2026
Фотографии
7
Объявление 735227
Ярославль, Вспольинское поле улица, д.1
62 500
руб. / мес Аренда
250 м2
Обновлено
10.04.2026
Фотографии
15
Объявление 735841
Ярославль, Писемского улица, д.56
120 000
руб. / мес Аренда
285 м2
Обновлено
25.03.2026
Фотографии
5
Объявление 736168
Ярославль, Дядьковская улица, д.зд21
160 000
руб. / мес Аренда
320 м2
Вход в личный кабинет