Сдам в аренду помещение свободного назначения 390 м.кв.

Просмотров 18
234 600 руб. / мес
на 19% дешевле похожих объектов ?
Ярославль , Победы улица, д.6
Рафиков Ринат
Показать телефон
Данные актуальны на 19.01.2026
Пожаловаться на объявление
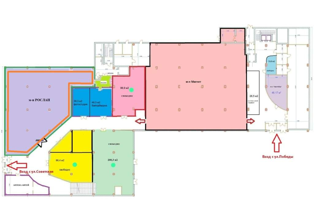
Арт. 90851277. Предлагаем в аренду помещение 391 кв.м. на 1ом этаже в торгово/деловом-центре по адресу: Ярославль, ул. Победы д. 6 в ТЦ «Дом Моды». В сумме аренды указана первоначальная льготная стоимость. Помещение свободно с 1 февраля 2026 г. Помещение расположено при входе в здание со стороны ул. Советская, на внутреннем трафике в магазин МАГНИТ и ПВЗ Wildberries. Возможно использование под торговлю, офисную деятельность, услуги. Высокие потолки, панорамные окна. Электричество оплачивается по счетчикам. В здании расположены: пункт выдачи «Wildberries», «Магнит», «Детский мир», детский развивающий центр "Леонардо парк", арена виртуальной реальности "WARРOINT". На 1-3 этажах здания расположены в основном торговля и услуги, на 4-6 этажи здания - офисы. Развитая инфраструктура вокруг. Транспортная доступность (в шаговой доступности один из основных транспортных узлов города) . Две зоны парковки - платная перед фасадом здания (с возможностью приобретения абонементов по доступу на месяц) и бесплатная с торца здания. -------------------------------------------------------------- Без комиссии, аренда от собственника! -------------------------------------------------------------- ГК "Метро" - лидер рынка коммерческой недвижимости Ярославля. У нас самый большой портфель недвижимости и наибольшая выгрузка рекламы на отраслевых площадках. -------------------------------------------------------------- 1. Больше информации по телефону и в форме чата. 2. По запросу предоставим расширенный пакет фотографий, поэтажные планы и техническую документацию. 3. Для иногородних клиентов оперативно покажем объект по видеосвязи. 4. Приглашаем посредников к сотрудничеству на выгодных условиях. 5. Если этот объект не понравился по фотографиям и описанию - обращайтесь, предложим альтернативу. 6. Фиксируем звонки в режиме 24/7, для Вашего удобства работает контакт-центр.

Дополнительная информация

Тип здания Отдельное здание Этаж 1 Этажность 6 Количество комнат - Вход - Ремонт С ремонтом
Интернет - Кондиционер - Вентиляция - Пожарная сигнализация - Красная линия -
Объекты, находящиеся поблизости
Банки, банкоматы
ПАО "Промсвязьбанк" 121м
Ак Барс Банк 190м
ПАО "Промсвязьбанк" 199м
ПАО "Промсвязьбанк" 202м
ПАО "Промсвязьбанк" 204м
Столовые, кафе
Фарфор 186м
KFC 239м
Дарьял 325м
Столовая 7 329м
Котокафе "КОфеТерий" 342м
Медучреждения
Антей 32м
Медтехника 134м
37,2 216м
Панацея 246м
Алоэ 298м
Динамика изменения цен на рынке недвижимости ?

По городу Ярославль, в категории Универсальные помещения
За последние полгода средняя сумма аренды за кв.м. выросла на 8 руб. Колебание цен происходило от 735 руб. до 743 руб. На текущий момент наблюдается тенденция к росту цены.
Похожие объявления
Обновлено
01.04.2026
Фотографии
15
Объявление 734812
Ярославль, Достоевского улица, д.23а
390 000
руб. / мес Аренда
441.8 м2
Обновлено
25.03.2026
Фотографии
3
Объявление 736168
Ярославль, Дядьковская улица, д.зд21
160 000
руб. / мес Аренда
320 м2
Обновлено
24.03.2026
Фотографии
5
Объявление 736165
Ярославль, Победы улица, д.45
572 000
руб. / мес Аренда
440 м2
Обновлено
13.03.2026
Фотографии
9
Объявление 734969
Ярославль, Промышленное шоссе, д.зд54
254 000
руб. / мес Аренда
430 м2
Обновлено
12.03.2026
Фотографии
15
Объявление 718067
Ярославль, Вспольинское поле улица, д.15
160 000
руб. / мес Аренда
400 м2
Обновлено
11.03.2026
Фотографии
8
Объявление 735489
Ярославль, Вспольинское поле улица, д.13
118 000
руб. / мес Аренда
335 м2
Обновлено
05.03.2026
Фотографии
7
Объявление 735280
Ярославль, Тутаевское шоссе, д.6
219 000
руб. / мес Аренда
365 м2
Обновлено
05.03.2026
Фотографии
11
Объявление 735282
Ярославль, Октября проспект, д.84
181 500
руб. / мес Аренда
330 м2
Обновлено
05.03.2026
Фотографии
12
Объявление 735275
Ярославль, Мышкинский проезд, д.10
179 000
руб. / мес Аренда
400 м2
Обновлено
02.03.2026
Фотографии
15
Объявление 735016
Ярославль, Свободы улица, д.19
192 000
руб. / мес Аренда
320 м2
Вход в личный кабинет