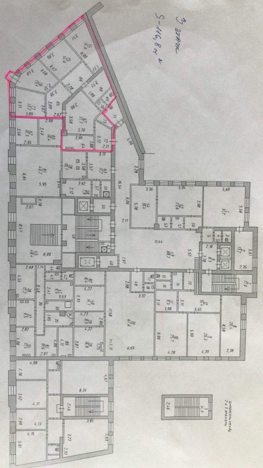
Сдам в аренду помещение свободного назначения 116 м.кв.

на карте
Просмотров 24
105 120 руб. / мес
Ярославль , Свободы улица, д.1/2
Ершов Иван
Показать телефон
Данные актуальны на 01.04.2026
Пожаловаться на объявление
Арт. 72411646. Предлагаем в аренду помещение общей площадью 116 кв. метров. Расположенное по адресу ул. Свободы д. 1 3 этаж Установлены системы вентиляции, кондиционирования и охраны. Коммунальные услуги включены в стоимость арендной платы, электроэнергия оплачивается на основании показаний счетчика. В здании есть лифт -------------------------------------------------------------- Без комиссии, аренда от собственника! -------------------------------------------------------------- ГК "Метро" - лидер рынка коммерческой недвижимости Ярославля. У нас самый большой портфель недвижимости и наибольшая выгрузка рекламы на отраслевых площадках. -------------------------------------------------------------- 1. Больше информации по телефону и в форме чата. 2. По запросу предоставим расширенный пакет фотографий, поэтажные планы и техническую документацию. 3. Для иногородних клиентов оперативно покажем объект по видеосвязи. 4. Приглашаем посредников к сотрудничеству на выгодных условиях. 5. Если этот объект не понравился по фотографиям и описанию - обращайтесь, предложим альтернативу. 6. Фиксируем звонки в режиме 24/7, для Вашего удобства работает контакт-центр.

Дополнительная информация

Тип здания Бизнес-центр Этаж 3 Этажность 4 Количество комнат - Вход - Ремонт С ремонтом
Интернет - Кондиционер - Вентиляция - Пожарная сигнализация - Красная линия -
Объекты, находящиеся поблизости
Банки, банкоматы
Открытие 66м
ВТБ 89м
ПАО Сбербанк 98м
Росбанк 157м
ПАО "Промсвязьбанк" 184м
Столовые, кафе
Арбуз 63м
FoodPark 95м
Бургер Кинг 96м
Coffee Like 121м
Баккара 134м
Медучреждения
Планета здоровья 260м
Авторитет 287м
Власьевская 289м
Вита Центральная 317м
Аптекарь 337м
Динамика изменения цен на рынке недвижимости ?

По городу Ярославль, в категории Универсальные помещения
За последние полгода средняя сумма аренды за кв.м. выросла на 8 руб. Колебание цен происходило от 735 руб. до 743 руб. На текущий момент наблюдается тенденция к росту цены.
Похожие объявления
Обновлено
02.04.2026
Фотографии
10
Объявление 730404
Ярославль, Красноперевальский переулок, д.7/45
38 000
руб. / мес Аренда
95 м2
Обновлено
30.03.2026
Фотографии
11
Объявление 736397
Ярославль, Лисицына улица, д.23
156 000
руб. / мес Аренда
130 м2
Обновлено
24.03.2026
Фотографии
7
Объявление 718254
Ярославль, Московский проспект, д.129
125 000
руб. / мес Аренда
100 м2
Обновлено
23.03.2026
Фотографии
7
Объявление 720622
Ярославль, Московский проспект, д.29/13
80 000
руб. / мес Аренда
100 м2
Обновлено
17.03.2026
Фотографии
4
Объявление 735757
Ярославль, Гагарина улица, д.62а
45 000
руб. / мес Аренда
100 м2
Обновлено
16.03.2026
Фотографии
12
Объявление 735695
Ярославль, Октября проспект, д.зд78а
73 000
руб. / мес Аренда
100 м2
Обновлено
13.03.2026
Фотографии
11
Объявление 732993
Ярославль, Московский проспект, д.139б
70 000
руб. / мес Аренда
100 м2
Обновлено
10.03.2026
Фотографии
14
Объявление 735470
Ярославль, Свободы улица, д.2
266 800
руб. / мес Аренда
116 м2
Обновлено
10.03.2026
Фотографии
14
Объявление 735457
Ярославль, Ленинградский проспект, д.52г
58 000
руб. / мес Аренда
115 м2
Обновлено
10.03.2026
Фотографии
15
Объявление 735458
Ярославль, Ленинградский проспект, д.52г
88 000
руб. / мес Аренда
110 м2
Вход в личный кабинет