Сдам в аренду помещение свободного назначения 90 м.кв.

на карте
Просмотров 72
54 000 руб. / мес
на 20% дешевле похожих объектов ?
Ярославль , Победы улица, д.6
Рафиков Ринат
Показать телефон
Данные актуальны на 04.03.2026
Пожаловаться на объявление
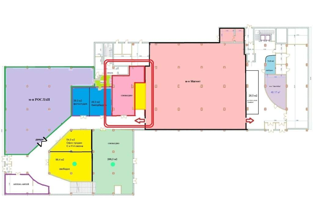
Арт. 63122584. Предлагаем в аренду помещение до 90 кв.м. на 1ом этаже в бизнес-центре по адресу: Ул. Победы д. 6 в ТЦ «Дом Моды». В сумме аренды указана первоначальная льготная стоимость на несколько месяцев. Торговый модуль расположен рядом со входом в магазин МАГНИТ и ПВЗ Wildberries. Отдельный выход из помещения в зону погрузки/разгрузки. Есть тех возможность организации мокрой точки в помещение. Электричество по счетчикам. В здании расположены: пункт выдачи «Wildberries», «Магнит», «Детский мир», детский развивающий центр "Леонардо парк", арена виртуальной реальности "WARРOINT". На 1-3 этажах здания расположены в основном торговля и услуги, на 4-6 этажи здания - офисы. Развитая инфраструктура вокруг. Транспортная доступность (в шаговой доступности один из основных транспортных узлов города) . Две зоны парковки - платная перед фасадом здания (с возможностью приобретения абонементов по доступу на месяц) и бесплатная с торца здания. -------------------------------------------------------------- Без комиссии, аренда от собственника! -------------------------------------------------------------- ГК "Метро" - лидер рынка коммерческой недвижимости Ярославля. У нас самый большой портфель недвижимости и наибольшая выгрузка рекламы на отраслевых площадках. -------------------------------------------------------------- 1. Больше информации по телефону и в форме чата. 2. По запросу предоставим расширенный пакет фотографий, поэтажные планы и техническую документацию. 3. Для иногородних клиентов оперативно покажем объект по видеосвязи. 4. Приглашаем посредников к сотрудничеству на выгодных условиях. 5. Если этот объект не понравился по фотографиям и описанию - обращайтесь, предложим альтернативу. 6. Фиксируем звонки в режиме 24/7, для Вашего удобства работает контакт-центр.

Дополнительная информация

Тип здания Бизнес-центр Этаж 1 Этажность 6 Количество комнат - Вход Отдельный Ремонт С ремонтом
Интернет - Кондиционер - Вентиляция - Пожарная сигнализация - Красная линия -
Объекты, находящиеся поблизости
Банки, банкоматы
Промсвязьбанк 114м
Промсвязьбанк 192м
Ак Барс Банк 192м
Промсвязьбанк 195м
Промсвязьбанк 197м
Столовые, кафе
Фарфор 192м
Дарьял 322м
Столовая 7 328м
Котокафе "КОфеТерий" 343м
Coffee Like 373м
Медучреждения
Медтехника 127м
37,2 223м
Панацея 249м
Алоэ 306м
Эконом 345м
Динамика изменения цен на рынке недвижимости ?

По городу Ярославль, в категории Универсальные помещения
За последние полгода средняя сумма аренды за кв.м. выросла на 8 руб. Колебание цен происходило от 735 руб. до 743 руб. На текущий момент наблюдается тенденция к росту цены.
Похожие объявления
Обновлено
02.04.2026
Фотографии
10
Объявление 730404
Ярославль, Красноперевальский переулок, д.7/45
38 000
руб. / мес Аренда
95 м2
Обновлено
24.03.2026
Фотографии
7
Объявление 718254
Ярославль, Московский проспект, д.129
125 000
руб. / мес Аренда
100 м2
Обновлено
23.03.2026
Фотографии
7
Объявление 720622
Ярославль, Московский проспект, д.29/13
80 000
руб. / мес Аренда
100 м2
Обновлено
17.03.2026
Фотографии
4
Объявление 735757
Ярославль, Гагарина улица, д.62а
45 000
руб. / мес Аренда
100 м2
Обновлено
16.03.2026
Фотографии
12
Объявление 735695
Ярославль, Октября проспект, д.зд78а
73 000
руб. / мес Аренда
100 м2
Обновлено
13.03.2026
Фотографии
11
Объявление 732993
Ярославль, Московский проспект, д.139б
70 000
руб. / мес Аренда
100 м2
Обновлено
10.03.2026
Фотографии
9
Объявление 704168
Ярославль, Реактивный проезд, д.6
60 000
руб. / мес Аренда
90 м2
Обновлено
05.03.2026
Фотографии
11
Объявление 735286
Ярославль, Индустриальная улица, д.39а
55 000
руб. / мес Аренда
75 м2
Обновлено
05.03.2026
Фотографии
13
Объявление 729035
Ярославль, Колышкина улица, д.62
50 000
руб. / мес Аренда
100 м2
Обновлено
04.03.2026
Фотографии
7
Объявление 725446
Ярославль, Базовая улица, д.зд5в
47 000
руб. / мес Аренда
81 м2
Вход в личный кабинет